Обяви 0 За нас Контакти
Продава ФРИЗЬОРСКИ/КОЗМЕТИЧЕН САЛОН
град София, Витоша
ул. Братя Чакрин
299 800 €
586 357.83 лв.

(1 499 €, 2 931.79 лв./m2)
Цената е без ДДС
Коригирана в 14:13 на 31 март, 2026 год.
Обявата е посетена 2481 пъти.
Площ:
200 m2
Етаж:
Партер от 6
Строителство:
Тухла, Въведен в експлоатация

Описание на имота:


Представяме Ви МНОГОФУНКЦИОНАЛЕН ИМОТ на отлична локация и непосредствена близост до бул. 'Симеоновско шосе' - ул. Братя Чакрин 10.

Мястото е изключително комуникативно, в близост са бдеща метростанция, спирки на градски транспорт, хипермаркет 'Кауфланд', банки, фитнеси и медицински центрове. За Ваше улеснение и придобиване на представа за локацията на бдещата метростанция спрямо предлагания от нас имот, прилагаме генерална схема на метрото в София. Имотът изключително функционален и може да бъде ползван за най-различен вид търговска дейност.

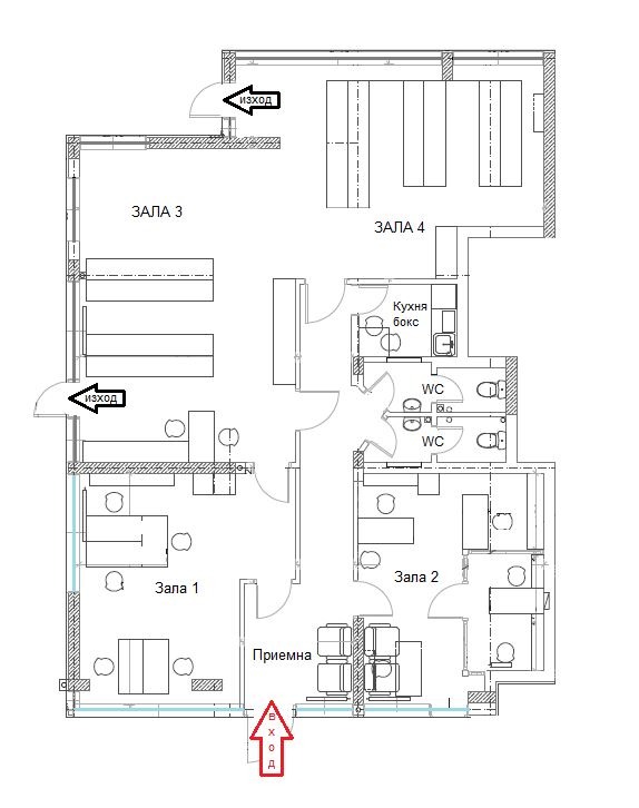
Офисът е разположен на партерен етаж с чиста застроена площ от 173 кв.м. Две от залите са с гоелми френски прозорци и лице към улицата. Разполага с три отделни входа. За допълнителна сигурност са монтирани ролетни решетъчни врати на всеки вход и изход. Вградено окабеляване и климатици във всяка зала. Настилки са гранитогрес и ламиниран паркет, а тавана е растерен окачен.

Разпределението е следното:
Приемна
Голяма работна зала с два отделни входа
(възможност за разделяне на две отделни зали при нужда)

Конферентна зала
Трета отделна зала
Кухненски бокс
Две санитарни възела

Офисът се продава необзаведен!
Цената е без ДДС.
Обадете се сега и цитирайте този код: 51 158
Особености
Тухла
Саниран
За контакт:
0877526215
Брокер:
Даниел Вълчинков
0877 52 62 15
Още оферти от брокера: Продава | Дава под наем | Купува | Наема
Агенция:
ТИКЧЕ
0895 99 06 59
ТИКЧЕ logo
Медал за прослужено време
В imot.bg от 2018 г.
tikche.imot.bg
Адрес:
област София, гр. София, гр. София, бул. Цариградско шосе 40
http://www.tikche.bg
ИЗПРАТИ ЗАПИТВАНЕ
ИЗПРАТИ ЗАПИТВАНЕТО

Продава ФРИЗЬОРСКИ/КОЗМЕТИЧЕН САЛОН
град София, Витоша
ул. Братя Чакрин
Обява: 1t175861599513278

299 800 €
586 357.83 лв.
(1 499 €, 2 931.79 лв./m2)

Цената е без ДДС
ЗАПАЗИ ОБЯВАТА

Местоположение: град София, Витоша, ул. Братя Чакрин

Допълнителни данни за имотите в района и сравнение с други райони

Покажи

Период

и 4 месеца

* Средните цени са определени чрез медианна стойност